Multigenerational Living in the Austin Suburbs: Floor Plans That Actually Work
Multigenerational living in the Austin suburbs is back — and this time it’s deliberate, designed, and demanding better floorplans. Whether you’re caring for aging parents, helping adult children save for their own future, or simply pooling resources to afford homeownership, the right layout can make the difference between harmony and daily frustration. This guide breaks down the design criteria that actually work for multigenerational households and highlights five purpose-built floorplans across northeast Austin suburbs that consistently deliver privacy, flexibility, and long-term value.
Table of Contents
- Introduction to Multigenerational Living in the Austin Suburbs
- Why Multigenerational Homes Are Growing in Austin Suburbs
- What to Avoid in Austin Suburbs Multigenerational Floor Plans
- The Oltorf Floor Plan in Round Rock, TX
- The 2797W Floor Plan in Hutto, TX
- The Presidio Floor Plan in Georgetown, TX
- The Comal Floor Plan in Pflugerville, TX
- The Cameron Floor Plan in Manor, TX
- Multigenerational Home Checklist for Austin Suburbs
- How to Choose the Right Austin Suburbs Floor Plan
- Tips for Touring Multigenerational Homes in Austin Suburbs
- Cost and Value of Multigenerational Homes in Austin Suburbs
- Final Thoughts on Multigenerational Living in Austin Suburbs
- FAQs About Multigenerational Homes in Austin Suburbs
Introduction to Multigenerational Living in the Austin Suburbs
Choosing a house for multigenerational living in the Austin suburbs is not the same as choosing a house for a nuclear family. Picking a plan only by bedroom count is the fastest route to conflict. The right home gives each generation their own retreat, shared spaces that actually function, and a traffic flow that prevents daily friction.
Strong floorplans allow you to gather for dinner, then retreat to separate living rooms without feeling crowded. They solve real, recurring problems: bathroom bottlenecks, parking chaos, noisy open hallways, and lack of private work or rest spaces. These are the issues that turn multigenerational living into a nightmare if not addressed at the design level.
Why Multigenerational Homes Are Growing in Austin Suburbs
Across the U.S., nearly one in five people now live in a multigenerational household — more than double the rate from the 1970s. In Texas, about 25% of buyers plan to live with an adult child or a parent under one roof. The reasons are practical and emotional: affordability, caregiving, and mutual support.
For many families, multigenerational living in the Austin suburbs is the difference between buying a home and renting forever. Rising home prices and higher interest rates make combining resources a sensible strategy. At the same time, many households need to provide care for aging parents or give adult kids a runway to save. When the layout is right, this arrangement builds financial resilience and daily connection without constant friction.
What to Avoid in Austin Suburbs Multigenerational Floor Plans
There are some clear red flags that reliably predict trouble in multigenerational households. Avoid plans with these features:
- Bedrooms lined up in a single hallway. These create no acoustic separation; you’ll hear everything from doors to footfalls.
- Multiple people sharing a single bathroom. Shared bathrooms in the morning are a conflict magnet. Whenever possible, give adults private bathrooms.
- Cramped common areas. Small kitchens and living rooms mean family time feels like a wrestling match.
- Small lots or shallow driveways. Limited parking turns every morning into musical cars, especially when HOAs restrict street parking.
- Homes under 2,700 square feet. While possible to make work, smaller footprints struggle to create the separation adults need.
The goal is separation without isolation: private retreats, secondary living rooms, and clear circulation paths so people can coexist comfortably.
The Oltorf Floor Plan in Round Rock, TX
Why it works for multigenerational living in the Austin suburbs: the Oltorf by Scott Felder Homes nails the essentials. At roughly 3,000 square feet (upgradable to 3,500), it delivers a first-floor primary suite and a second first-floor bedroom with its own full bath right near the entry — the non-negotiable pairing for long-term comfort.
Key features:
- Two primary suites on the main floor — both private and separated from each other, so downstairs residents retain independence and dignity.
- Dedicated home office off the entry that doubles as a den or enclosed retreat.
- Large upstairs game room (18x13) plus a separate enclosed media room (12x15) — a legitimate upstairs living hub that gives other household members a reason to stay upstairs when they want privacy.
- Three-car garage option to solve parking logistics from day one.
Price and commute snapshot: available in Round Rock (starting around $689,000) and Pflugerville (low $600s). Expect 20–35 minutes to the North Austin tech corridor and about 30–45 minutes to the airport.

VIEW HOMES FOR SALE IN ROUND ROCK TX
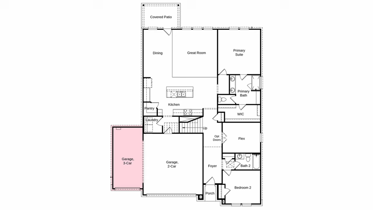
The 2797W Floor Plan in Hutto, TX
The Perry Homes 2797W is a compact masterclass in efficient design — just under 2,800 square feet, but laid out with multigenerational living in mind. Instead of relying on raw square footage, it prioritizes usable separate zones and sensible flow.
Standout elements:
- Main-floor primary suite with 10-foot ceilings and an option to convert the second downstairs bedroom into a full suite with a private bathroom — the dual-suite main level that keeps stairs out of the daily routine for whoever needs it.
- Dedicated first-floor home office and an upgraded kitchen to anchor shared life.
- Large upstairs game room (21x5) that functions as a true second living room — not a cramped loft.
Main trade-off: the standard two-car garage. To mitigate parking pain, prioritize corner lots or lots with longer driveways. Pricing starts in the high $500s, with options around $635,000. Commute times to the tech corridor range 25–45 minutes.
VIEW HOMES FOR SALE IN HUTTO TX
The Presidio Floor Plan in Georgetown, TX
For households that need maximum separation, the Presidio by David Weekley is a powerhouse. At nearly 3,500 square feet and with a standard four-car garage, it mostly eliminates parking headaches and stacks living zones strategically across two levels.
Why it’s built for multigenerational living in the Austin suburbs:
- Owner’s retreat tucked in the back of the house for real privacy, plus a second front-of-house bedroom with its own full bath.
- Multiple dedicated living areas on the first floor including a private study and an enclosed TV room in addition to the main family room.
- Upstairs provides two extra bedrooms and a third living zone — so upstairs occupants have a complete world of their own.
Starting price around $725,000, the Presidio is for families that need space, privacy, and flexibility. Commutes: roughly 25–45 minutes to the tech corridor and 35–45 minutes to the airport.
VIEW HOMES FOR SALE IN GEORGETOWN TX
The Comal Floor Plan in Pflugerville, TX
Taylor Morrison’s Comal plan demonstrates why builder-level detail matters. Designed for a 60-foot lot, this five-bedroom home packs functional separation into about 2,900 square feet and starts from roughly $507,000 — the most accessible plan on this list.
What makes the Comal a top pick for multigenerational living in the Austin suburbs:
- Two bedrooms on the first floor — primary suite in the back and a second bedroom with a full bath off the foyer.
- First-floor flex room with optional doors that can be enclosed as a home office, sitting room, or private den for downstairs residents.
- Upstairs game room serving as a robust second living area for younger household members.
- Option to upgrade to a three-car garage thanks to the wider lot — which is highly recommended to avoid daily parking headaches.
Pflugerville’s commute advantage is notable: 15–35 minutes to the tech corridor, 25–35 minutes to the airport, and 25–40 minutes to downtown Austin. The Comal is an excellent balance of brand quality, value, and practical design.
VIEW HOMES FOR SALE IN PFLUGERVILLE TX
The Cameron Floor Plan in Manor, TX
Weston Homes’ Cameron is the largest plan on this list at nearly 3,500 square feet and is visually dramatic — think grand staircases and high ceilings. It’s built to impress and performs even better when you’re trying to keep multiple generations comfortable under one roof.
Why the Cameron stands out for multigenerational living in the Austin suburbs:
- Two first-floor bedrooms with ensuite bathrooms and a primary suite that includes two walk-in closets — one with a pass-through to the utility room, which is a smart everyday convenience.
- First-floor study and formal dining for flexible private uses.
- Upstairs media room plus a separate game room — giving the upstairs occupants a fully private world and creating three distinct living spaces beyond the main family room.
The main caveat is the standard two-car garage on a home this size, so look for a larger lot that allows for a wider and deeper driveway or plan to upgrade the garage. Manor’s location gives some of the best commutes of the suburbs: 20–35 minutes to major employment hubs.
VIEW MORE HOMES FOR SALE IN MANOR TX
Multigenerational Home Checklist for Austin Suburbs
When evaluating homes for multigenerational living in the Austin suburbs, use this checklist to separate the plans that will last from the ones that will fail:
- At least two primary suites, with at least one on the first floor.
- First-floor powder room or half bath for guests so private bedrooms aren’t used as hall bathrooms.
- Dedicated flex space or study on the first floor that can be a den, office, or quiet room.
- Upstairs private living area such as a game room or media loft so upstairs residents have a reason to stay upstairs.
- Ensuite bathrooms for upstairs bedrooms where possible to reduce shared-bath friction.
- Three-car garage or equivalent parking solution — prioritize 60-foot lots or larger for wider footprints.
- Lot depth and driveway length to reduce morning car logistics and HOA parking headaches.
How to Choose the Right Austin Suburbs Floor Plan
Every family’s needs are different. To prioritize features, ask these questions:
- Who needs a no-stairs bedroom and why? (aging parent, mobility issue, preference)
- How many adults will have cars? If three or more, treat a three-car garage as essential.
- Will someone need a quiet room for work or medical equipment? Then a first-floor flex with doors is high priority.
- How much private living space should upstairs occupants have to avoid friction? A true game room or media room makes a big difference.
Use your answers to adjust the checklist above and be relentless about the non-negotiables. It’s much easier to add upgrades in the design stage than to retrofit an existing home after conflict starts.
Tips for Touring Multigenerational Homes in Austin Suburbs
When touring new construction or resale, bring this quick inspection routine:
- Stand in the foyer and map the daily circulation: can someone get from the garage to the kitchen without walking through a private suite?
- Open doors and listen: are bedrooms acoustically separated or do you hear every footstep?
- Check upstairs living space size: is it a landing or a true second living room?
- Drive the lot: can you visualize multiple cars, deliveries, and guests without blocking a neighbor?
- Confirm bathroom layouts: who shares with whom during morning routines?
Choosing the right lot is sometimes as important as choosing the right plan. Wide lots allow the three-car frontage many multi-gen households need.
Cost and Value of Multigenerational Homes in Austin Suburbs
Budget planning for multigenerational living in the Austin suburbs requires balancing up-front cost with long-term functionality. Some practical notes:
- A home designed correctly from the start can save thousands in remodels later and prevent costly stress and turnover.
- Upgrading to a three-car garage or adding first-floor options will increase the sticker price but pays back in convenience and daily peace.
- Smaller plans can work if they provide truly separate living areas, but aim for 2,700–3,500 square feet for the best chance of success.
Think of the purchase as a household systems decision: the right layout is an investment in relationships and sanity.
FIND YOUR DREAM HOME IN AUSTIN OR ONE OF ITS FAST-GROWING SUBURBS
Final Thoughts on Multigenerational Living in Austin Suburbs
Multigenerational living in the Austin suburbs can be a powerful solution to financial pressure and caregiving needs — but only when the house is built to support it. Prioritize two main-floor suites, separate living zones, private bathrooms, and adequate parking. The five floorplans covered here each solve those problems in different ways and price points, so you can find a plan that fits your budget and lifestyle without sacrificing privacy or comfort.
If you apply the design checklist and walk through these plans with the lot and parking in mind, you’ll find a home that supports family while preserving the peace. Ready to get started? Call or text us at 512-648-2828 to book a free consultation.
FAQs About Multigenerational Homes in Austin Suburbs
What is the most important design feature for multigenerational living in the Austin suburbs?
At minimum, two primary suites with at least one on the first floor. This provides accessible private space for someone who cannot or prefers not to use stairs and maintains dignity and independence.
Is a three-car garage necessary for multigenerational households?
A three-car garage is highly recommended when multiple adults will have vehicles. It eliminates daily parking logistics and friction. If a three-car garage is not standard, prioritize a wider 60-foot lot or a longer driveway.
Can smaller homes work for multigenerational living?
Smaller homes can work if they create real separation: a first-floor suite, a dedicated flex room, and a legitimate upstairs living area. However, homes under 2,700 square feet are much harder to make comfortable long-term.
Which suburbs offer the best commutes for multigenerational families?
Pflugerville and Manor offer some of the shortest commutes to the tech corridor and downtown. Round Rock, Georgetown, and Hutto provide balance between space and commute time depending on where family members work.
What layout pitfalls should I avoid?
Avoid bedroom rows along a single hallway, multiple adults sharing one bathroom, and small, cramped common areas. Also avoid lots that limit driveway depth and parking.
READ MORE: Expensive Mistakes People Make When Moving from Dallas to Austin
Alisha & Matthew Wilson
With years of experience in both residential and investment properties, they are dedicated to helping clients navigate Austin’s thriving market.
LIVING IN Austin TX
Specializing in relocation and real estate investment, they provide expert advice and guidance to help you find your dream home or investment property in the vibrant Austin market. Tune in for helpful tips, neighborhood tours, and insights on living in Austin.






